St Laurence Church Feasibility

Reimagining a landmark kirk as a community, culture and arts hub in the heart of Forres

Feeldwork was commissioned by the St Laurence Forres Trust to develop the feasibility work that helped shape a new future for St Laurence Church: one rooted in community use, cultural life and long-term local stewardship.

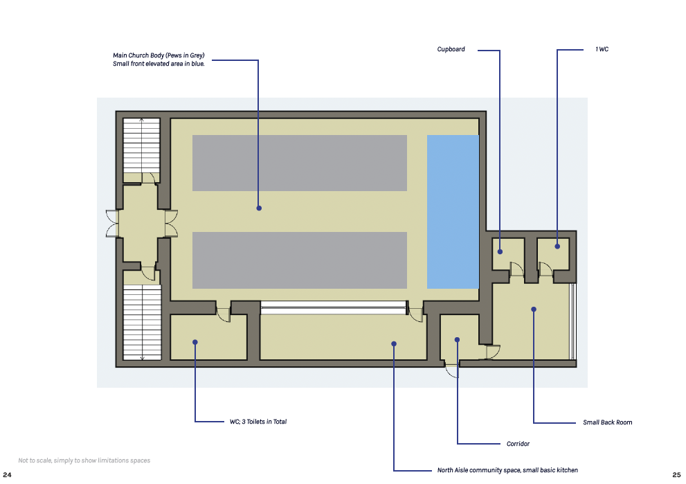
Working with the Trust, we helped articulate a clear and compelling vision for the building as a welcoming, vibrant space for community, culture and the arts. The ambition was not simply to preserve an important historic place, but to reimagine how it could serve Forres now and into the future: as a venue for music, creativity, gathering and shared civic life, while continuing to hold space for weddings, funerals and life’s milestones, as it has for generations. The church site dates back to 1275, with the current building around 120 years old.

Our feasibility work focused on the potential of St Laurence as a multi-use community asset in the centre of town, identifying how this iconic building could remain active, loved and publicly valuable. Through this process, Feeldwork supported the development of a strong case for community ownership and future use, helping translate local care for the building into a viable, forward-looking vision.

In March 2026, the St Laurence Forres Trust completed the purchase of the church from the Church of Scotland. The acquisition was supported by generous local donations and a £110,000 grant from the Scottish Land Fund.

The result is a major step for Forres: securing St Laurence Church for community ownership and opening the door to its next chapter as a cultural and civic hub in the town centre.

project outcome

A feasibility-led vision that helped support the successful community acquisition of St Laurence Church, now set to become a space for music, arts, cultural events and community life in Forres.

Vision statement

“Our vision is to transform this iconic building into a welcoming and vibrant hub for the community. By collaborating with local organisations and groups, we will create a venue in the heart of Forres for music, arts, and cultural events, while ensuring this beautiful space remains a home for the weddings, funerals, and milestones as it has done for centuries.”

  • We were delighted by the very high quality of the Feasibility and Business Planning Report prepared by Gabby and the Feeldwork team. We had a an extremely tight timetable to work with and we were impressed by their attention to detail and their time commitment to help us finalise the Report in good time before our deadline

    J ames Campbell,  Chair , Forres St Laurence Trust

  • I came onto the Board just as you were completing your Feasibility Report but hopefully our paths will cross again - thank you for all the amazing groundwork you have done in the Report, it's given us such a strong foundation and I have used it a lot already in understanding and shaping this initial phase of our work

    — Helen Avanell, St Laurence Forres Trustee

Previous
Previous

Grounded Wisdom More-Than-Human Workshops

Next
Next

Forth Rivers Trust: Future of Community-led Nature Restoration